Großzügige und sanierte Büro-/Praxisfläche in super Innenstadtlage von Zschopau

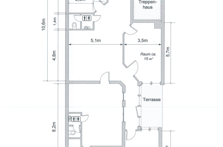
Großzügige Praxis- oder Büroeinheit kleiner Dachterrasse mit 1. OG eines gepflegten Wohn- und Geschäftshauses mit ca. 130 qm Nutzfläche bestehnd aus 5 Zimmern, einem großen Flurbereich, einer kleinen Teeküche sowie zwei WC-Anlagen mit Waschbecken ab dem 01.02.2025 frei zur Miete.
Die Gewerbeeinheit ist vollständig saniert und renoviert. Vor wenigen Jahren wurde der gesamte Fußbodenbelag (hochwertiges Klickvinyl und Industrieteppichbelag) der Räume erneuert. Alle Räume werden mittels Zentralheizung beheizt. In drei Räumen befinden sich Kaltwasser- und Abwasseranschlüsse zur Installation einer Teeküche oder ggfs. auch zum Einbau einer Dusche.
Die Kaltemiete sowie Heiz- und Betriebskostenvorauszahlungen verstehen sich Netto zzgl. 19 % MwSt. bei gewerblicher Nutzung.
Raumaufteilung
– Praxisfläche mit 5 variable nutzbaren Räumen.
– Großer Flurbereich zwischen den Räumen potenziell als Wartebereich nutzbar.
– Kleiner Bereich für Teeküche vorhanden.
– Zwei getrennte WC-Anlagen mit Waschbecken.
– Kleine Dachterrasse vorhanden.
– Vollständig sanierte und renovierte Einheit.
– Neuwertiger Fußbodenbelag in allen Räumen.
Aufgrund Denkmalschutz wird kein Energieausweis benötigt.
Lage:
Das denkmalgeschützte Gebäude mit der im 1. OG befindlichen Büro- oder Praxisfläche befindet sich in unmittelbarer Nähe zum Alt- und Neumarkt der Stadt Zschopau. Es handelt sich um eine gut ausgebaute Nebenstraße des innerstädtischen Zentrums. Es herrscht reger Publikumsverkehr. Das Stadtzentrum sowie das Jagdschloss „Wildeck“ und die spätgotische Kirche St. Martin befinden sich in unmittelbarer Umgebung. In der In direkter Nachbarschaft befinden sich die verschiedensten Geschäfte des täglichen Bedarfs.
Sonstiges/Besichtigungstermine:
Alle Angaben sind ohne Gewähr und basieren ausschließlich auf Informationen, die uns von unserem Auftraggeber übermittelt wurden. Wir übernehmen keine Gewähr für die Vollständigkeit, Richtigkeit und Aktualität dieser Angaben. Die Fotoanlagen wurden von der der Fa. Maklerdienste Günther & Partner Inh. Tony Günther selbst erstellt.
Die Gewerbeeinheit ist ab dem 01.02.2025 verfügbar.
Besichtigungstermine nach telefonischer Anfrage ab sofort möglich.
